Appartement individuel
Création d’une terrasse et aménagement d’une cuisine
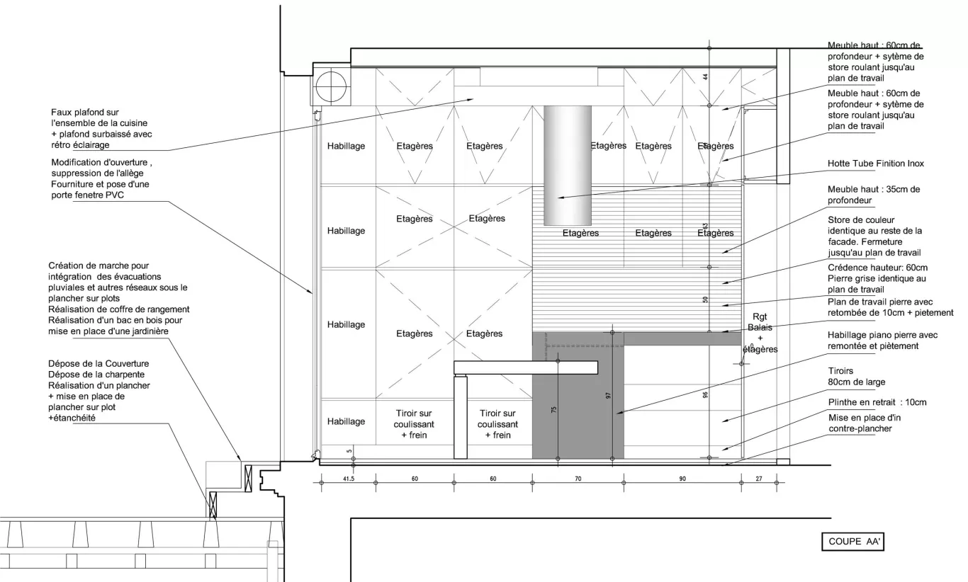
Au cœur du quartier historique toulousain dans un immeuble du XIXeme siècle, le projet consistait à réaménager en éléments modernes la cuisine de cet appartement familial ainsi que de créer un précieux espace extérieur en créant une terrasse "cosy", optimisé par un aménagement adapté à cet espace restreint.

