Villa Marguerite
Rénovation et extension d'une maison de maître en bureaux et logements
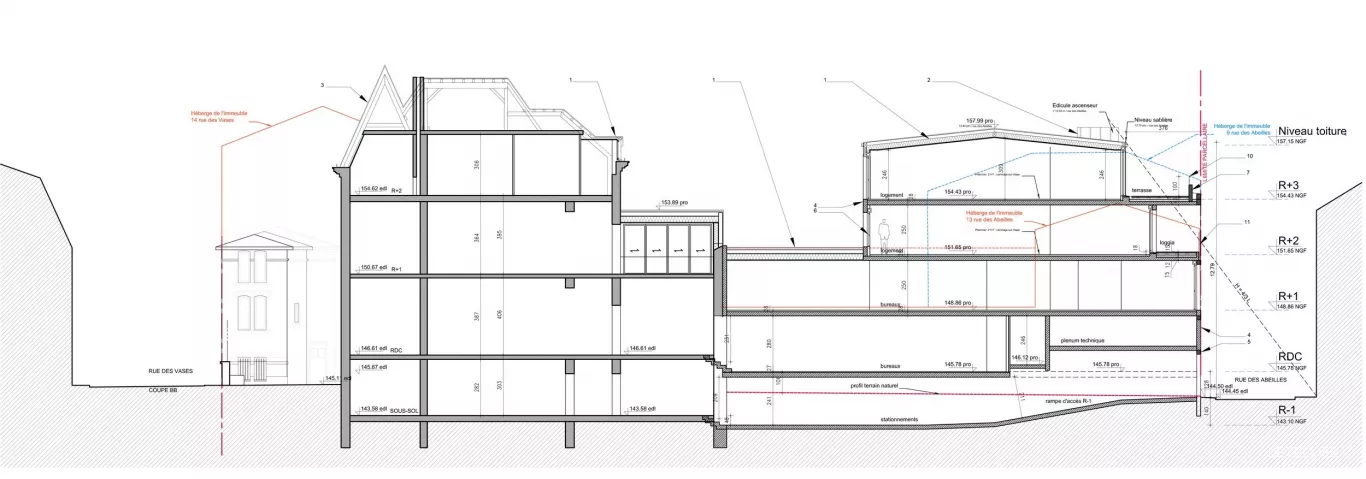
Le projet est né de la volonté d'intégrer le partimoine existant à l'opération neuve constituée de 7 logements et d'une surface de bureaux . Le projet propose donc la rénovation de la partie existante et l'ajout d'une partie neuve en arrière de la parcelle, dans la même logique que les bâtiments avoisinants. A l'instar de sa composition volumétrique, le programme traite l'ensemble du projet comme un tout cohérent. Au centre de la parcelle, un espace végétalisé permet de conserver un cœur calme.
Informations projet
- Localisation Toulouse (31)
- Surface 1 349 m² SP
- Coût 1 334 000 €
- Phase Livré
- Architecte mandataire Letellier Architectes
- Maître d'ouvrage Privé
-
Maîtrise d'Œuvre
- BE Structure TECHNIB ingénierie
- BE Acoustique EMACOUSTIC Toulouse
- BE Fluides SATAC Ingénierie
- BE Thermique 2y
- BE (autre OPC...) SATEC/GFC
Spécificités
- Dialogue des époques
- Garde-corps en verre
- Béton matricé
- Bardage zinc







