Pour nous rencontrer ou échanger avec nous :

Contact

Standard

Direction Exécution Travaux – OPC

Développement commercial

Recrutement

Nous écrire

* Tous les champs sont obligatoires

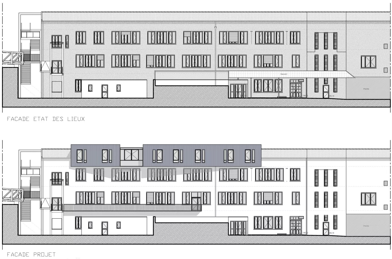
Lycée Clément Ader

Restructuration et extension du lycée professionnel

Situé dans le périmètre de protection de la fontaine située devant la Mairie, la restauration et la restructuration fonctionnelle du lycée répond a une démarche environnementale importante. La surélévation propose une volumétrie en corrélation avec l'existant. Réalisé en site occupé, les travaux ont aussi pour objectif lamélioration thermique y compris isolation par l'extérieur / économie d'énergie.

Nos Réalisations

Informations projet

  • Localisation Samatan (32)
  • Surface 4 999 m² SP
  • Coût 3 527 000 €
  • Phase En chantier
  • Architecte mandataire Letellier Architectes
  • Maître d'ouvrage Région Occitanie
  • Maîtrise d'Œuvre
    • BE Structure 3J Technologie
    • BE Fluides Math Ingénierie
    • Économiste Bateco

Spécificités

  • Site occupé
    Economie d'énergie et
    amélioration thermique
    Surélévation et restauration
    toiture
    Mobilier