EHPAA Notre-Dame de la Compassion
Réhabilitation et extension - 18 logements
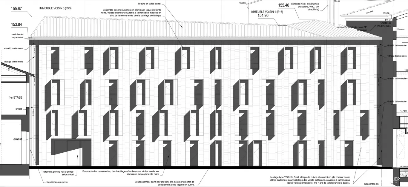
Dans le cœur historique de Toulouse, à proximité immédiate de la place du Capitole, l’ancien Collège de Foix est un immeuble à la fois inscrit à l’inventaire supplémentaire des monuments historiques et dont le donjon de 1457 est classé monument historique. Géré par les Sœurs de la Congrégation Notre-Dame de la Compassion, il accueille plusieurs entités dont une résidence étudiante et un EHPAD – le projet d’ajout d’un EHPAA se trouve donc dans la continuité de la destination du lieu. Cette extension en R+3 venant "fermer" une cour, l’agence LETELLIER Architectes a saisi l’opportunité pour la traiter en seconde cour d’honneur, créant un parallèle au cloître contigu. Dans la lignée du respect de l’architecture classique préexistante, une réflexion importante a été menée avec l’Architecte des Bâtiments de France afin de proposer un langage architectural à la fois moderne et cohérent avec le bâti ancien. L’idée de départ était de créer une façade rappelant la surface de l’eau, avec ses reflets, ses mouvements et sa douceur, métaphore d’une vie paisible, au calme. Les quatre niveaux sont ainsi revêtus de feuilles de cuivre à emboîtement de couleur dorée, et percés d’ouvertures aléatoires. Le bâtiment est traité comme un véritable objet architectural, qui marque une nouvelle étape dans la continuité de l’évolution urbaine. Le cuivre, un choix de matériau cohérent dans lieu historique par son caractère traditionnel, joue ici le rôle d’un épiderme. Il offre des effets de lumière spectaculaires, d’une grande finesse et élégance, créant une sorte de miroir qui se dématérialise pour donner la part belle aux bâtiments d’origine. La sobriété du traitement du parements, des menuiseries et des volets a été réfléchie dans le but d’accentuer cet effet. Le nouveau bâtiment, avec son volume et ses matériaux nobles, s’intègre parfaitement dans son environnement proche et contribue à embellir un espace urbain qui était jusqu’alors "inachevé".
Informations projet
- Localisation Toulouse (31)
- Surface 4 600 m² SP
- Coût 1 776 000 €
- Phase Livré
- Inscrit I.S.M.H 2003
- Architecte mandataire Letellier Architectes
- Maître d'ouvrage ICADE
-
Maîtrise d'Œuvre
- BE Structure BERNARD BEROY
- BE Acoustique EMACOUSTIC
- BE Fluides MATH INGÉNIERIE
Spécificités
- Secteur Sauvegardé
- Bardage cuivre doré panneaux à emboîtement



