Château Richard Cœur de Lion
Restauration général de la mairie
Ce projet de restauration globale du château "Richard Cœur de Lion" comprend l’aménagement intérieur des locaux de la mairie et de ceux du centre médico-social, afin de les rendre accessibles à un public à mobilité réduite.
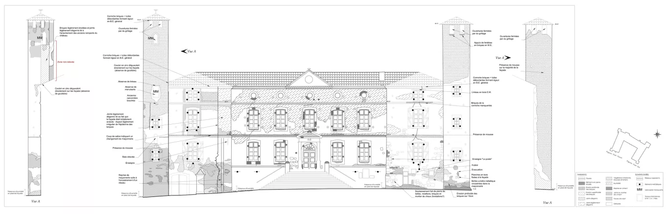
Le château de Saint-Nicolas-de-la-Grave a connu de nombreux remaniements depuis sa construction, dont le plus important date du XIXème siècle. En effet, d’après l’étude historique du bâtiment, c'est à cette période que les façades de la cour intérieure ont été construites. Leurs parements à l'aspect moins "fini" que ceux des autres façades semblent indiquer qu'elles étaient initialement enduites. Afin de réintroduire ce contraste entre les parties du bâtiment datant du Moyen-Âge et celles datant du XIXème siècle, le projet prévoit la restitution de cet enduit.
Informations projet
- Localisation Saint-Nicolas-de-la-Grave (82)
- Coût 2 232 627 €
- Phase En cours
- Inscrit I.S.M.H. 1978
- Architecte mandataire Letellier Architectes
- Maître d'ouvrage Mairie de Saint-Nicolas-de-la-Grave
-
Maîtrise d'Œuvre
- BE Structure AIA INGÉNIERIE
- BE ÉLECTRICITÉ PCL INGÉNIERIE
- Économiste LAURENT TAILLANDIER
- ARCHÉOLOGUE GILLES SÉRAPHIN

