Cabinet d'avocats
Extension
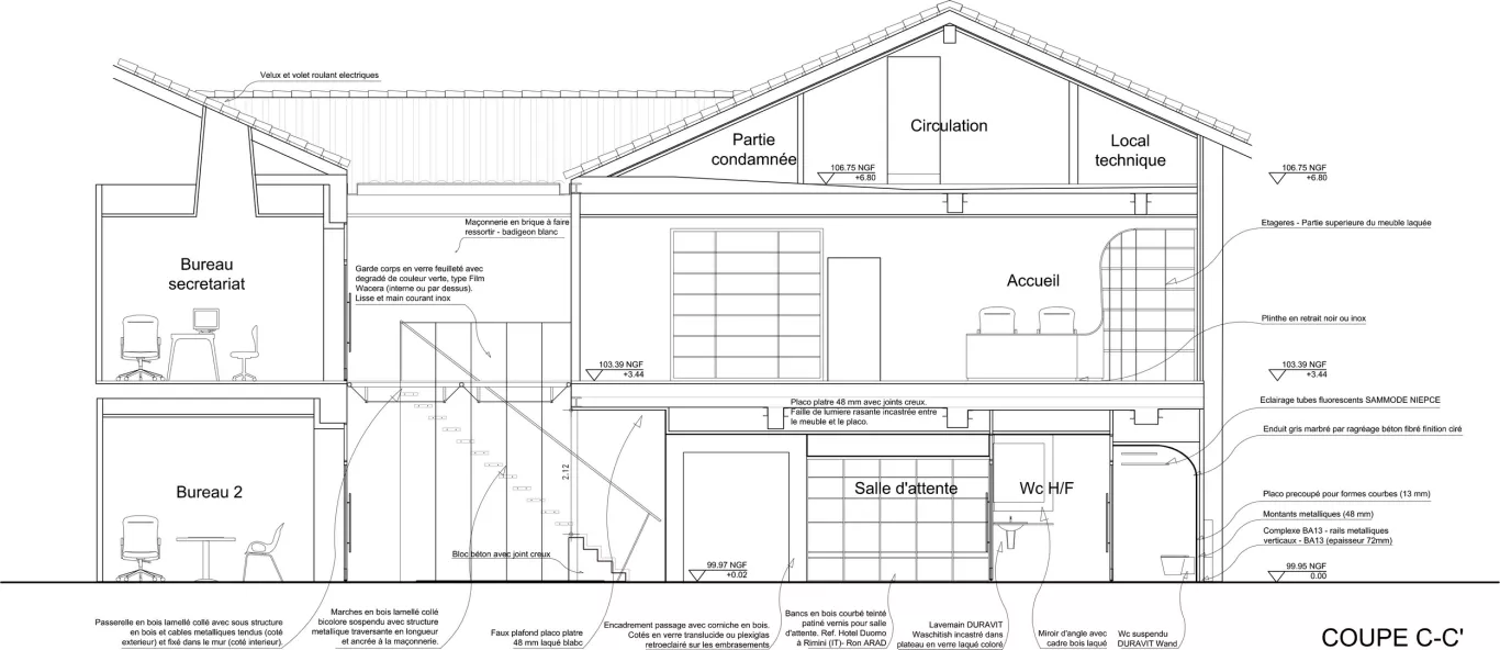
Un cabinet d'avocats de grande renommée installé dans un immeuble au centre-ville de Toulouse nous a confié l'extension de ses locaux. Enclavé au fond d'une cour, le bâtiment était vétuste et sombre. La création d'un patio sur deux niveaux, d'une passerelle suspendue et d'un escalier ajouré donnant sur une large façade vitrée ont permis un éclairage plus important des bureaux.



